Sítě na OKNO - pevné - atyp - tvar 12
Sítě na OKNO - pevné - atypické
Všechny profily pro sítě proti hmyzu jsou vyráběny z hliníku. Garantujeme kvalitu našich výrobků.
Jsou vyráběny ze stejných profilů jako Sítě proti hmyzu na OKNO - pevné z naší nabídky.
Tyto sítě dosedají na rám okna (viz obrázek níže). Pokud křídlo okna po zavření nevytváří dostatečný prostor pro síť proti hmyzu, dochází k jejímu vytlačování.
Například:
- na křídle je okapová lišta
 - křídlo okna je vůči rámu okna v jedné rovině z vnější strany
 - štulpová okna
 - a podobně.
 
V tomto případě jsou tyto sítě proti hmyzu nevhodné pro taková okna. Pro řešení nám zavolejte nebo pošlete e-mail. Rádi Vám poradíme.
Výrobky vyžadují vysokou přesnost zaměření. U atypických tvarů sítí proti hmyzu zadávejte přesně naměřené rozměry bez odpočtů v milimetrech.
Zaměření a označení rozměrů podle obrázku je při pohledu z interiéru.
Zaměření proveďte co nejpřesněji. Každou stranu měřte v jejím vrcholu.
Obrysový (celkový) rozměr rámu sítě na okno je o 26 mm větší než objednací rozměr (13 mm tvoří lem profilu sítě – platí to pro šířku i výšku výrobku). Tím je zajištěn přesah rámu sítě vůči objednacímu rozměru (světlý otvor okna). Vzhledem k nutnosti napnutí síťoviny Vás upozorňujeme, že rozměr uprostřed výrobku může být menší než objednací rozměr – nemá to vliv na funkčnost výrobku a nepovažuje se to za chybu.
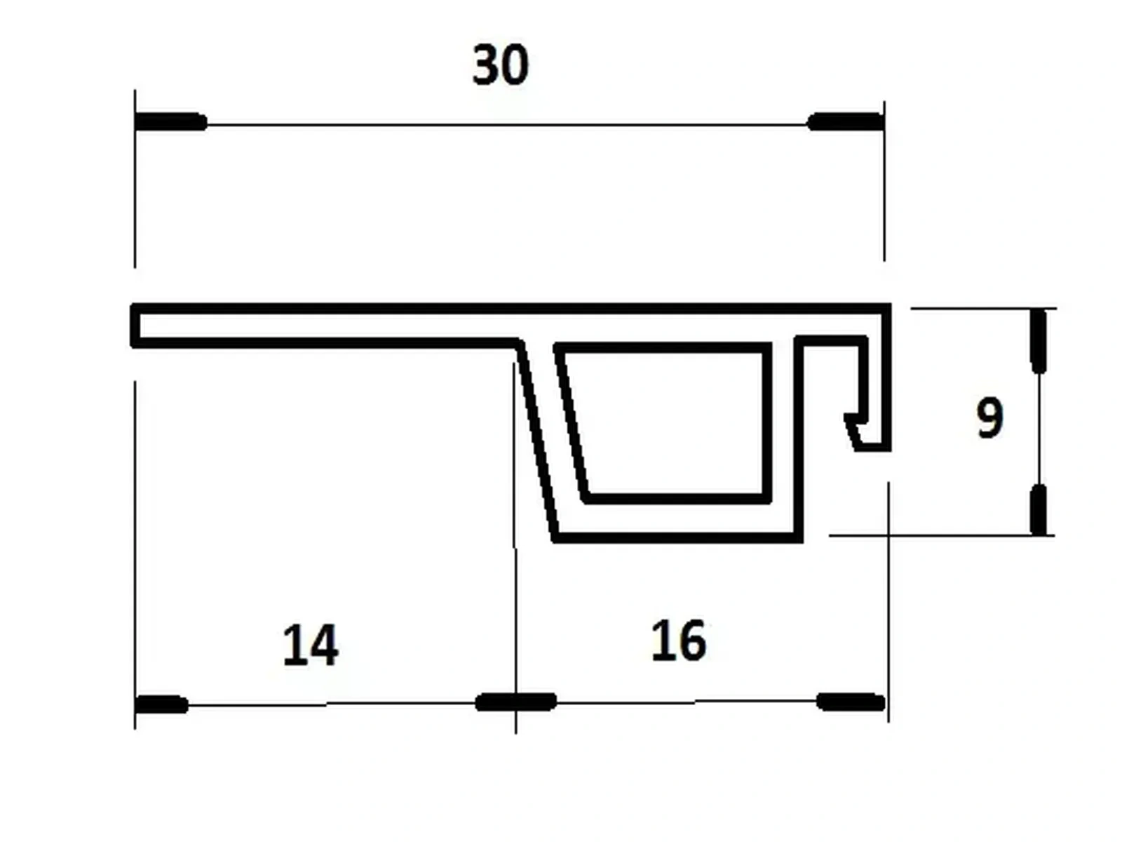
Rozměry profilu

Popis sítě proti hmyzu

Typy síťoviny
Šedá – standardní šedá síťovina. Propouští dostatek světla a brání hmyzu ve vstupu do Vašeho domova.
Černá – standardní černá síťovina. Rozdíl oproti šedé je pouze v barvě. Propouští stejné množství světla a brání hmyzu ve vstupu do Vašeho domova.




